4.预约福利:成功预约后有专属置业顾问全程陪同讲解。拨打颐海云颂售楼处电线.注意事项:为保证接待质量,请出发前进行预约,避免案场没有销售接待;也可提前1-3天预约销售;
项目采用「SONG 生命之颂」康居体系,从温度、声音、空气、水等多方面满足健康生活需求。同时,引入社区APP、智慧安防等智慧科技系统,打造健康舒适的居住环境。建筑设计由大象担纲,园林景观设计则由笛东负责。室内精装设计出自深圳市郑中之手,物业为海开自有物业,金钥匙认证,提供高标准管家服务。


该项目占地4.48万平米,建筑面积达9.86万平米,容积率仅为2.2。项目分南北两区,共752套房源。南区以97至124平米的小户型为主,包括三居和四居,共9栋楼,楼层13至15层,432户,均采用两梯两户设计。南区特色为南向客厅及卧室均设飘窗。北区则主打大户型四居,面积137至171平米,6栋楼,楼层6至15层,320户,其中小高层为两梯两户,洋房为一梯两户。北区南向客厅采用落地窗,卧室则设飘窗。整体得房率约80%,虽略低于永丰北,但居住舒适度依旧上乘。

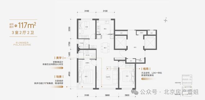
117平米三居两卫全明户型,南向三面宽,飘窗设计,客厅面宽约3.8米。


更有137平米四居两卫北区入门户型,客厅落地窗,两卧室带飘窗,配独立家政间。

148平米四居三卫全明户型,南向三面宽达12米,独立玄关+家政间,客厅落地窗面宽约5.1米。

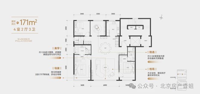
最大户型171平米四居三卫,南向三面宽约13米,客厅开间约6米,主卧转角飘窗,配独立衣帽间和浴缸空间。

项目在玄关、厨房、主卧、卫生间等区域均设计了系统的收纳空间。精装交付,家电品牌高端:博世厨电、高仪卫浴、华为智能系统、旭格系统窗、简一地砖等,品质生活触手可及。
外立面采用超白玻璃幕+石材+金属铝板结合,选材成本高昂,风格现代化。单元大堂弧形设计,拉丝不锈钢、泛光吊灯、奢石等元素彰显空间礼序。南北两区均设下沉式会所,设计下沉卡座,选用宝格丽仿石砖。小区内归家连廊设计独特,植被丰富,与儿童活动健身场地相邻,动静相宜。社区大门中轴对称格局,三门礼制,五步台阶设计寓意步步高升。商业部分规划商务办公、星级酒店、长租公寓、高端商街等业态,满足日常所需。
颐海云颂指导价9.3万/平。样板间正紧锣密鼓地筹备中,预计1月份开放。预计春节后3月份正式开盘。
永丰南规划有十二年一贯制建华学校,预计2025年上半年开工,2026年底完工,2027年9月招生投入使用。根据就近入学原则,颐海云颂业主有望入读,但具体以政策为准。

颐海云颂西侧不到1公里处为已关停的六里屯垃圾场。该场地正进行科学化处理,未来将变身大公园。对于垃圾场问题,心理接受程度因人而异。若介意此点,可考虑其他如高压线功德寺(能入地)或短期内无地铁的永丰北等项目。


颐海云颂售楼处电线.看房方式:颐海云颂售楼处位置电线✔️(开发商认证)
4.预约福利:成功预约后有专属置业顾问全程陪同讲解。拨打颐海云颂售楼处电线.注意事项:为保证接待质量,请出发前进行预约,避免案场没有销售接待;也可提前1-3天预约销售;
特别声明:以上内容(如有图片或视频亦包括在内)为自媒体平台“网易号”用户上传并发布,本平台仅提供信息存储服务。
爆!李小璐终于不忍了!时隔多年再提旧事,首度回应PGONE事件!网上又炸锅了
“翻机不卡”成热梗!华为畅享90Pro Max换成友商旗舰机依然被骂卡爆,翻过面才发现骂错了
三年不换壳!iPhone18 Pro机模泄露,这次缩灵动岛+保留拍照键
小米18 Pro:双2亿像素主摄+LOFIC技术,大量采用思特威CMOS!