您当前使用的浏览器版本过低,可能存在安全风险,建议升级浏览器,或者用以下浏览器浏览
近日,国务院批复同意在2年内开展苏南重点城市(苏州在列)等10个要素市场化配置综合改革试点。这一政策利好将为苏州楼市注入新的活力,土地、资金、人才等要素的优化配置,将进一步提升苏州的城市竞争力和房地产市场发展潜力。在这样的政策背景下,苏州楼市迎来新的发展机遇,而润鸿四季作为沧浪新城板块8年来的首个新盘,无疑是购房者不容错过的优质选择。
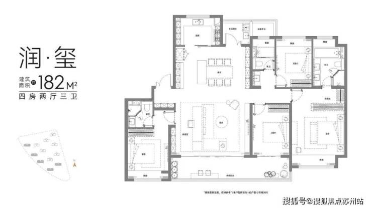
润鸿四季是由华发股份与华润置地两大知名开发商联袂打造的高端住宅项目,产品涵盖小高层和高层,产权年限70年。项目主力户型面积约为143平方米和182平方米,采用精装修交付,包含空调、热水器、厨房三大件。车位配比高达1:2.15,充分满足业主停车需求。项目由华润物业提供专业物业服务,确保居住品质。项目位于姑苏区宝带西路南、福运路西,距离地铁3号线米,交通十分便利。目前项目备案均价为38000元/平方米。

润鸿四季的地理位置简直太便利了!家门口就有体育馆和运河公园跑道,平时锻炼身体超级方便。交通方面,地铁3号线就在附近,还有友新快速路、苏福快速路等多条主干道,无论去哪里都畅通无阻。商业配套也很齐全,世茂生活广场、万达广场、龙湖天街都是大型商业综合体,购物、娱乐一站式搞定。医疗方面,苏州市中医医院就在周边,看病就医非常方便。
最让人惊喜的是润鸿四季的生态环境,1.5公里范围内同时拥有上方山、石湖和京杭运河三大自然资源,这在苏州楼市上非常罕见。特别是上方山国家森林公园,面积达500公顷,森林覆盖率高达95%以上,植物种类超过300种,简直就是城市中的天然氧吧,四季都有不同的美景。

◎【生态:独享山·湖·运河 绝版资源】 项目1.5公里内同时拥有一山(上方山)一湖(石湖)一河(270°环京杭运河),天赋珍贵的生态与人文高地,在苏州楼市罕见。
✔一山:上方山国家森林公园 上方山国家森林公园占地500公顷,森林覆盖率达95%以上,植物种类达300多种,以卓越自然,涵养四季生活。
润鸿四季所在的沧浪新城板块已经断供8年了,市场上一直没有新楼盘供应,所以这个项目一推出就引起了广泛关注。今年5月的土拍现场,有十多家开发商争相抢购这块地,经过31轮激烈竞价才进入线下摇号环节,可见其价值有多高。作为板块内唯一的新盘,润鸿四季天生就带有红盘属性,未来升值潜力不可限量。
教育资源也是润鸿四季的一大亮点,项目紧邻立达中学和沧浪新城第四实验小学等名校。立达中学可是苏州的头部学区学校,成立于1996年,前身是苏州中学,2022年四星高中达线%,教学质量有口皆碑。此外,项目旁边还有杭鸣时粉画艺术馆,艺术氛围浓厚,为业主提供了高品质的文化生活体验。
润鸿四季的户型设计充分考虑了现代家庭的生活需求,空间布局合理,功能分区明确。无论是143平方米还是182平方米的户型,都采用了大面宽、短进深的设计,保证了充足的采光和通风。户型方正实用,没有浪费的空间,每一寸面积都得到了充分利用。厨房和卫生间设计科学,动线流畅,满足日常生活所需。此外,项目还注重细节设计,如飘窗、阳台等,既增加了使用空间,又提升了居住品质。


润鸿四季的优势主要体现在以下几个方面:首先,地理位置优越,位于姑苏区核心地段,交通便捷,配套齐全;其次,生态环境得天独厚,同时拥有山、湖、河三大自然资源,在苏州楼市上极为罕见;再次,教育资源丰富,紧邻多所名校,为子女教育提供了保障;最后,开发商实力雄厚,由华发股份和华润置地两大知名房企联袂打造,品质有保障。此外,项目断供8年后首次推出,稀缺性高,未来升值潜力巨大。
随着苏州被纳入要素市场化配置综合改革试点,城市将迎来新一轮发展机遇。润鸿四季作为沧浪新城板块8年来的首个新盘,不仅拥有得天独厚的地理位置和生态环境,还紧邻名校资源,未来发展潜力巨大。在政策红利和板块稀缺性的双重加持下,润鸿四季有望成为苏州楼市的新标杆,为业主带来可观的价值回报。
声明:本文由入驻焦点开放平台的作者撰写,除焦点官方账号外,观点仅代表作者本人,不代表焦点立场。
锦望华庭-昆山锦望华庭楼盘详情-户型配套-锦望华庭最新价格-最新资讯-锦望华庭售楼处位置
锦望华庭-昆山(锦望华庭) 首页网站-2025最新房价+户型图+小区环境+小区配套
锦望华庭 昆山锦望华庭(锦望华庭售楼处电话)首页网站-楼盘评测-锦望华庭-户型配套
上海宝山璞圆2025首页网站璞圆售楼处电话璞圆在售户型小区配套最新价格璞圆周边详情容积率楼盘详情
上海宝山璞圆售楼处-璞圆(2025璞圆最新)楼盘网站-房价-户型-图文介绍
瑰郦中心(瑰郦中心售楼处)首页网站-2025瑰郦中心营销中心(售楼中心)小区欢迎您-售楼处电话-售楼处地址-户型-价格-楼盘详情-交房时间-一房一价
中铁青云府:限售松绑机遇,苏州湾地铁旁精装洋房品质之选
上海闵行象屿天宸雅颂售官方售楼处-天宸雅颂(2025天宸雅颂最新)楼盘网站-房价-户型-图文介绍
上海闵行保利海上印售楼处-保利海上印(2025保利海上印最新)楼盘详情-房价-户型-保利海上印图文介绍
华发海上都荟(上海松江)首页网站-2025楼盘评测_华发海上都荟配套户型丨最新房价+户型图+小区环境+配套+最新资讯+地铁距离+售楼处电线