9月14日,金茂龙城晓棠盛大开盘,这算是今年太原市场上最受关注的项目。项目于2025年6月27日案名发布,7月27日开始定存5万,8月31日举办产品发布会,9月13日实景示范区开放,在金茂品牌口碑及长风金茂悦红盘基因加持下,该项目从一开始就备受期待,直至开盘,客户及同行悬着的心终于落地。
项目开盘供应364套,户型面积为120/129/143㎡,截止当天下午6点,去化率41%左右,成交均价达到13,700元/㎡。
这个价格多少有点超过客户及同行对它的预期,当然在目前市场下,如此价格能达到此去化率,可以说已经非常不错,项目的产品力使客户折服,并为之买单,因此抛开价格不谈,金茂龙城晓棠项目确实是个不错的选择。

交通优势:项目紧邻地铁1号线分钟,未来还将接驳规划中的3号线,双地铁加持下,可快速抵达太原南站、武宿机场;
配套优势:步行1公里左右,和平公园、玉门河公园、汾河公园三大生态空间环绕;项目周边既有大王综合菜市场、纺织街小吃巷,又有公元时代城、下元商贸城(升级中)的现代商业,生活配套相当便利,构建“一平方公里理想生活”,且三公里范围内无在售品牌新盘,因此该项目在区域内的稀缺性可见。

通过惊喜感、进阶感、陪伴感、尊崇感、丰盈感、满配感,重构家的美与满,强调高颜立面、归家礼序、自然教育、全龄友好、户外拓展、邻里会客等,切实落实“好房子”政策,从“能居住”向“会生活”转变,改善区域内的人居环境,为客户提供了一套未来生活提案书。

项目目前所在营销中心,未来将是业主的归家大堂,酒店式大堂设计,气派十足,同时约150米的商街,同时规划了多种生活业态,串联起业主的业余生活碎片。

项目通过“架空层泛会所+下沉庭院”设计,让公共空间成为“社区第二客厅”。营销中心负一层约960㎡的会所内,居民们都能找到属于自己的天地:四点半学堂、儿童活动区、棋盘室、健身房、室内高尔夫、私宴厅等,促进邻里之间交流,满足业主们的社交娱乐需求。

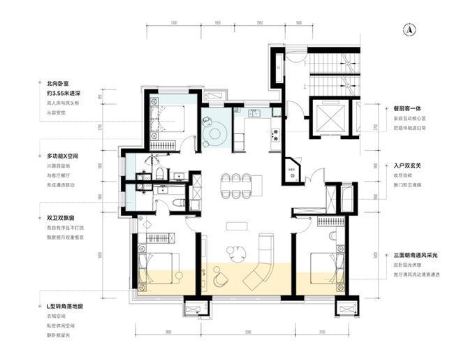
项目开盘供应的三种户型,120㎡/129㎡(得房率90%左右)/143㎡(得房率88%左右),可成长户型空间设计,经典三叶草格局,主卧套房设计,全屋方正通透。
以143㎡边户为例,实际使用面积可达126.64㎡,蓝色阴影部分为全赠送空间,黄色阴影部分为半赠送空间。

主卧套房面积约19㎡,进深约5米、宽约3.8米,既能放下1.8m双人床+双床头柜,还能预留独立化妆区与L型衣柜;
南侧次卧开间约3.1米、进深约4.95米,面积约15㎡,即使作为老人房,也能轻松容纳1.5m床+床头柜+书桌;
整个设计避免了主卧/客厅大,而挤压次卧面积导致家庭成员的居住体验失衡问题。同时北向还赠送一个灵活空间,可作为电竞房/收纳间/书房等各类生活场景。

如何扩大收纳空间,是很多家庭的共同烦恼,金茂龙城晓棠从生活场景出发,基于对家庭生活习惯的深入研究,预判了家庭从二人世界到二胎家庭、再到三代同堂的成长需求。从玄关到厨房,从卫生间到家政间,每处设计都直击生活痛点,打造“有弹性”的收纳空间。
以建筑面积约143㎡的户型为例,全屋超过2.5万升的收纳空间,相当于40个大型SUV后备箱的容量。
厨房“U型布局”搭配多层拉篮,碗碟、锅具、调味料分类存放,地柜下方还设计了“踢脚抽”,可收纳清洁工具;水池盆台设置翻斗抽,可以放洗碗工具……

卫生间的“女王镜柜”,充分利用镜柜内侧空间,内置可以上下移动的美妆镜、可以给刮胡刀和电动牙刷等充电的插口,台盆下面做三层抽屉,使物品分类整体,提高柜子利用率……

近几年金茂在太原市场的品牌影响力加深,2025年上半年商品房成交金额排行榜中,金茂位居TOP2,市占率逐渐提高。目前共有5个项目,均为改善/高端项目,品质过硬,业主对金茂品牌评价较高,金茂龙城晓棠虽为代建项目,但是金茂在太原已经有成功的代建案例:龙城金茂府、滨河金茂府等项目,口碑很好,金茂品牌值得信赖。